Condo de luxe avec vue imprenable sur la ville de Pointe-Noire

Prix: 500FCFA
Rue Berenger, Brazzaville (commune), Congo-Brazzaville Bacongo , Brazzaville , Congo Brazzaville
  • 400 m²
Lits
Thermes
400 m²
Prix: 500FCFA

Description de la propriété

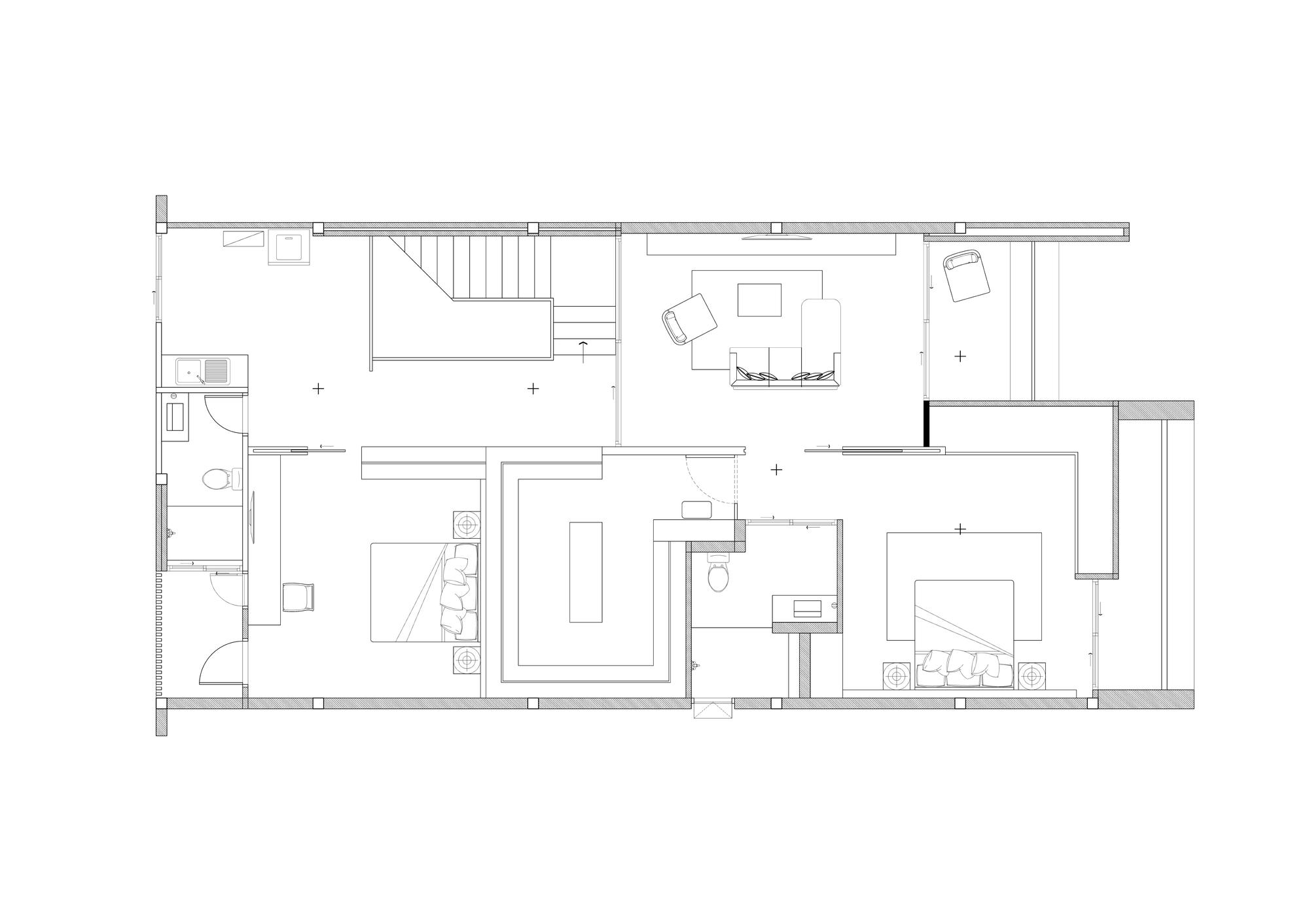
Bienvenue à la maison ! Cette exquise maison de ville à deux étages, nichée dans la communauté de Sabal Chase, dispose de 3 chambres à coucher, dont une idéalement située au premier étage, et de 2 salles de bains. L'agencement bien pensé offre beaucoup de lumière naturelle, mettant en valeur les pièces spacieuses et le patio tranquille. Imaginez que vous puissiez y savourer votre café du matin ou y organiser des réunions intimes. Situé à proximité d'une ceinture verte, les résidents peuvent profiter d'innombrables possibilités de loisirs en plein air, tout en ayant un accès facile au clubhouse de la communauté qui est équipé d'une piscine, d'une salle de sport et de divers terrains de basket-ball, de tennis, de pickleball et de racquetball. Avec des écoles de premier ordre, le FL Turnpike, des restaurants, le Miami Dade College et de nombreuses options de shopping à quelques minutes seulement, cet emplacement offre vraiment commodité et confort.

Caractéristiques

Type de maison Familiale
Parquet Carrelage en bois
Parking Garage une voiture

Vidéo

Planification des étages

Emplacement

Agent
admin
Online now

Please login to continue chat.

admin
Online now

Please login to continue chat.

Chats
Loading...
Loading...
Online

Please login to continue chat.

Loading...